Le Matriosche del benessere
Un sistema modulare pensato per adattarsi a diverse esigenze di comfort e benessere. Proprio come le tradizionali bambole russe che si aprono rivelando versioni più piccole al loro interno, le “Matriosche del benessere” propongono una gamma di configurazioni progressive: si parte dalla versione più completa, dotata di tutte le funzionalità multisensoriali – sauna, bagno turco, doccia, Sound Rem, monitor, privacy e terapy con aromaterapia e cromoterapia – fino ad arrivare a soluzioni più essenziali, mantenendo sempre il cuore del benessere.
Un progetto che valorizza la personalizzazione dell’esperienza: ogni livello della Matriosca riduce gradualmente il numero di funzioni, ma conserva alcune caratteristiche fondamentali come la ventilazione meccanica controllata (VMC), le luci di esercizio, il triplo vetro, la coibentazione interna in sughero e quella esterna in materiale termoriflettente.
Un modello evolutivo del benessere, accessibile e su misura.
Caratteristiche generali
materiali evoluti, struttura impeccabile
Ogni modulo è progettato per garantire durata, comfort e performance, unendo artigianalità e soluzioni tecniche d’eccellenza.
La base è realizzata in acciaio verniciato, mentre la struttura verticale è in tamburato di legno con coibentazione interna in sughero (spessore totale 40 mm), completata da un soffitto con la stessa composizione e finitura ispezionabile a quadrotti.
La copertura è in multistrato fenolico, impermeabilizzata con guaina EPDM, mentre i sei lati della struttura sono coibentati e impermeabilizzati con, materiale multiriflettente derivato dall’industria aerospaziale.
Le finiture esterne sono in doghe di legno Okumè , uno dei legni più idrorepellenti in assoluto e acciaio inox trattato con tecnologia Pure Metal Tech®. Gli interni, invece, sono rifiniti in legno Toulipier, caldo e accogliente.
Ogni modello dispone di un vano tecnico dedicato per ospitare le unità di servizio e gli allacciamenti elettrici e idrici.
I modelli 24&32 includono inoltre un box doccia da 100 x 100 cm, con apertura sia verso l’esterno che dall’interno della sauna, rifinito con un effetto pietra naturale.
Modello 24&27
Questo modello è il più compatto, non dotata di doccia.

SOUND REM
Superior
SAUNA
SOUND REM
MONITOR
PRIVACY
TERAPY
(aromaterapia e cromoterapia)

Esperienza
SAUNA
MONITOR
PRIVACY
TERAPY
(aromaterapia e cromoterapia)

Intimità
SAUNA
PRIVACY
TERAPY
(aromaterapia e cromoterapia)

Equilibrio
SAUNA
TERAPY
(aromaterapia e cromoterapia)

Essenza
SAUNA

Risonanza
SAUNA
SOUND REM
Modello 24&32
Questo modello è il più grande, dotata anche di doccia.

SOUND REM
Superior
SAUNA
BAGNO TURCO
DOCCIA
SOUND REM
MONITOR
PRIVACY
TERAPY
(aromaterapia e cromoterapia)

Immersione
SAUNA
DOCCIA
SOUND REM
MONITOR
PRIVACY
TERAPY
(aromaterapia e cromoterapia)

Esperienza
SAUNA
DOCCIA
MONITOR
PRIVACY
TERAPY
(aromaterapia e cromoterapia)

Intimità
SAUNA
DOCCIA
PRIVACY
TERAPY
(aromaterapia e cromoterapia)

Equilibrio
SAUNA
DOCCIA
TERAPY
(aromaterapia e cromoterapia)

Essenza
SAUNA
DOCCIA

Risonanza
SAUNA
DOCCIA
SOUND REM

Profondità
SAUNA
BAGNO TURCO
DOCCIA
SOUND REM
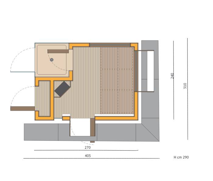
Dimensioni
La nomenclatura attuale dei moduli combina tre elementi distintivi:
Il nome del prodotto: Silence Outdoor
La finitura in acciaio inox trattato: Cortenox® o Calaminox®
Le dimensioni espresse in formato compatto: 24&27 (per 240×270 cm) e 24&32 (per 240×320 cm)
Il nome Silence sottolinea l’innovazione insita nel prodotto, che integra impulsi sonori come parte della sua esperienza multisensoriale.
Tutte le funzioni
Vuoi conoscere più approfonditamente le funzioni disponibili?















